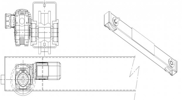
Cabeceiras para Pontes e Pórticos para movimento de translação longitudinal

As cabeceiras para ponte rolante / carros trole para pórticos rolantes, são fabricados de acordo com a norma NBR 8400, garantindo assim a segurança necessária para seu equipamento.

 

Com excelente acabamento e preços competitivos, possuímos em nossa linha de produtos cabeceiras para pontes univiga, pontes dupla-viga e carros trole para pórticos rolantes.

 

Com esta solução sua empresa irá reduzir o tempo e custo na fabricação de sua ponte ou pórtico rolante.

Solicite um Orçamento